
ZN85-40.5 / T2000-31.5 type indoor high voltage vacuum circuit breakers for three-phase AC 50Hz, 40.5kV power system, for industrial and mining enterprises, power plants and substations as the division and load current, overload current fault current purposes, and occasions for frequent operation. The circuit breaker arrangement with upper and lower structure, effectively reduce the depth of circuit breakers. And the use of composite structure, three-phase interrupter and associated charged body by the three independent phase separation of epoxy resin insulation casing, using a composite structure, the circuit breaker to meet the air under normal operating conditions from the required distance and climb and effectively reduce the size of circuit breakers, electrical circuit interrupter, a leading and dynamic and static conductive connection installed in the insulating tube, so that the distance only 300mm. All main circuit electrical connection fixed to connect with high reliability
Technical Information
Technical Specification |
|
|
|
|
|
|
|
Rated voltage | kV |
|
|
| 40.5 |
| |
Rated Short circuit breaking capacity 4sec. | kA | 25 |
| 31.5 |
| 25 | 31.5 |
Rated Current | A |
| 1250 |
| 1600 | 2000 2500 | |
Rated power frequency | Hz |
|
|
| 50/60 |
| |
Power frequency withstand voltage 50Hz 1 min,: | kV |
|
|
| 95 |
| |
Impulse withstand voltage 1.2/50μ s: | kV |
|
|
| 185 |
| |
Peak withstand current | kA Peak. | 63 |
| 80 |
| 63 | 80 |
Making Capacity | kA | 63 |
| 80 |
| 63 | 80 |
|
|
|
|
|
| ||
Operation sequence | times/h |
|
| 0-0.3s-CO-180s-CO |
| ||
Mechanism Endurance | cycles |
|
|
| 10000 |
| |
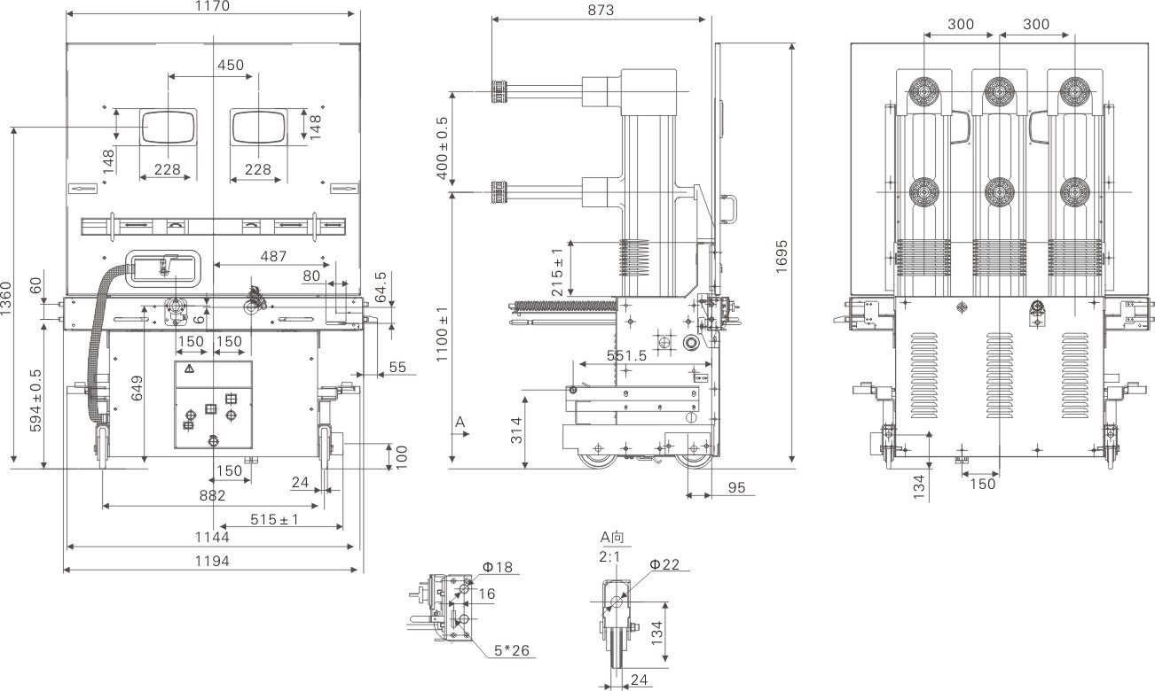
Overall and installation dimensions
Copyright ? Zhejiang Xikai Electric Co. , Ltd. 技術支持:鼎諾傳媒